



микрорайон Мирный, ул. Кирова, д. 27 — это жилой комплекс в Йошкар-Оле. Комплекс расположен по адресу: Республика Марий Эл, г. Йошкар-Ола, микрорайон "Мирный", поз. 27. Срок сдачи — 4 кв. 2025. Девелопер проекта — КАПИТАЛ.
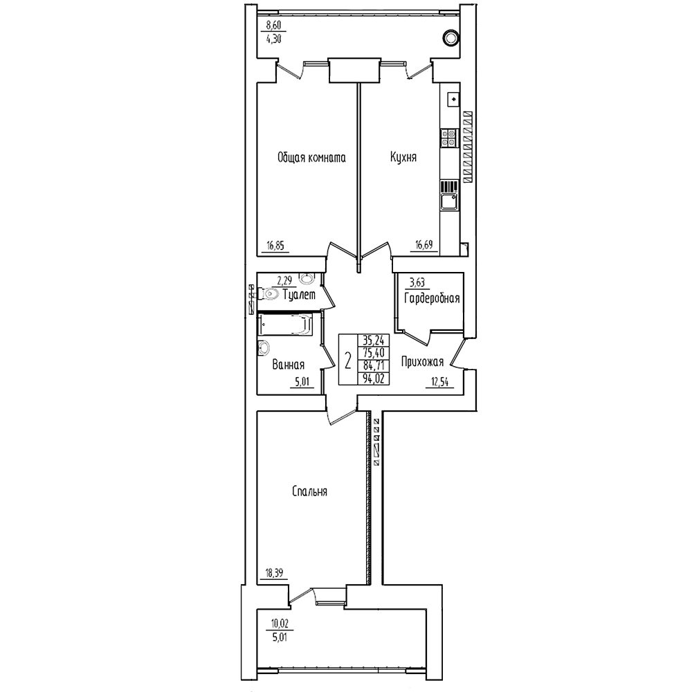
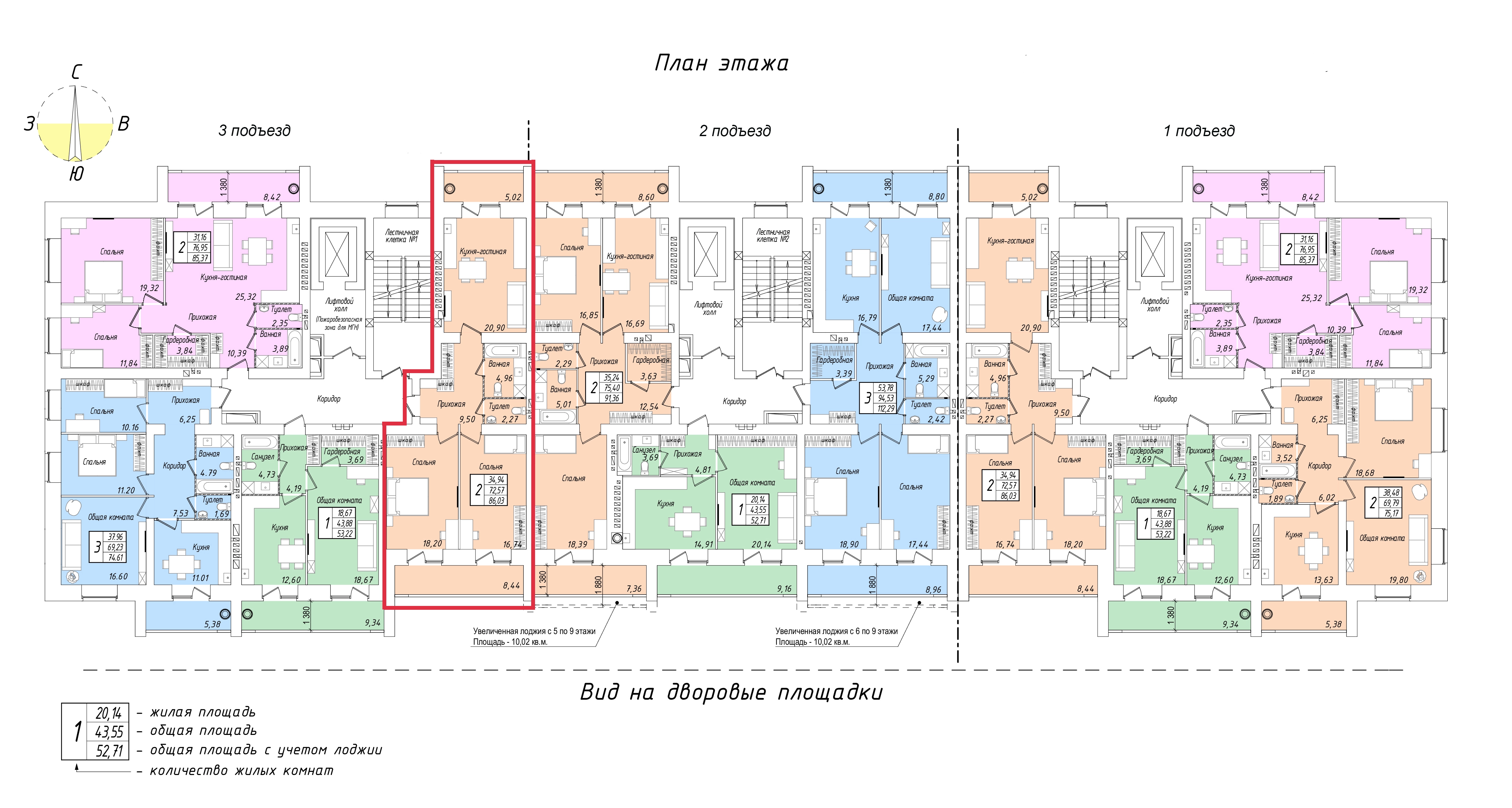
В продаже 24 квартиры. Представлены планировки: 2-комнатные и 3-комнатные. Этажность — 9-9. Квартиры предлагаются с отделкой: предчистовая, чистовая, без отделки. Цены начинаются от 9,5 млн ₽.
Жителям доступны: детская площадка. На странице представлены актуальные планировки, цены и доступные квартиры ЖК микрорайон Мирный, ул. Кирова, д. 27. Оставьте заявку — специалист свяжется с вами и подберёт подходящий вариант.
| Тип | Площадь | Цена | Кол-во |
|---|---|---|---|
| 2-комн | от 73 м² до 94 м² | от 9,50 млн ₽ | 18 |
| 3-комн | от 112 м² до 116 м² | от 11,60 млн ₽ | 6 |
ЖК микрорайон Мирный, ул. Кирова, д. 27 расположен в Йошкар-Оле по адресу: Республика Марий Эл, г. Йошкар-Ола, микрорайон "Мирный", поз. 27. Локация удобна для ежедневных поездок по городу как на автомобиле, так и общественным транспортом.
Загрузка карты...
ул Льва Толстого
ул. Павленко
поз.26
Республика Марий Эл
Республика Марий Эл
ул. Интернатская»
Улица Панфилова
ул. Молодежная
ограниченной бульваром Данилова