






ЖК Династия — современный проект в Вологде. Комплекс расположен по адресу: Вологда, Молодёжная улица, район Бывалово. Плановая сдача в эксплуатацию — 4 кв. 2026. Застройщик — СТРОЙ-КОМПЛЕКС.
Сейчас доступно для покупки 6 квартир. Представлены планировки: 1-комнатные и 3-комнатные. Этажность — 9-12. Варианты отделки: нет. Цены начинаются от 4,51 млн ₽.
На территории комплекса предусмотрены: детская площадка, спортивная площадка. Ознакомьтесь с планировками и расчётом ипотеки ниже. Для консультации оставьте заявку — перезвоним и расскажем о всех актуальных предложениях Династия.
| Тип | Площадь | Цена | Кол-во |
|---|---|---|---|
| 1-комн | от 41 м² до 44 м² | от 4,51 млн ₽ | 3 |
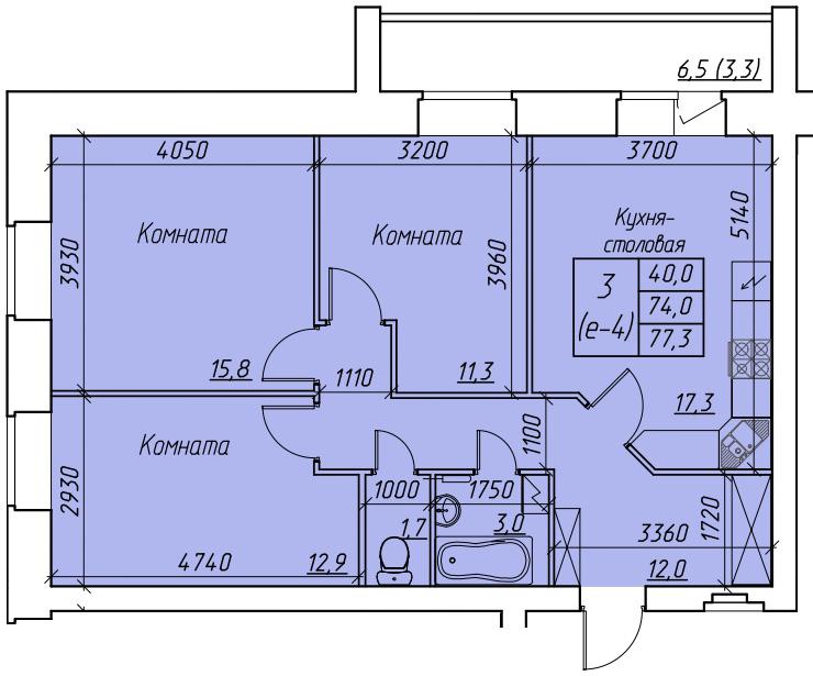
| 3-комн | от 77 м² до 80 м² | от 7,99 млн ₽ | 3 |
Жилой комплекс Династия находится в Вологде, в районе Бывалово, Вологда, Молодёжная улица. Транспортная доступность позволяет добраться до центра Вологды и ключевых районов города.
Загрузка карты...
1этап по ул. Старое шоссе
микрорайон Конева-Архангельская
улица Молодёжная
улица Лаврова
улица Возрождения
Суворова улица
Ул. Возрождения
Окружное шоссе
Белозерское ш.